ÅÚÃÏ
¹Å縩¹Åç»Ô°Âº´Ë̶èÍî¹çÆî£±ÃúÌÜ
- ¹¹ÃÏ
- ·úÃÛ¾ò·ï¤Ê¤·
- ÄãÁؽ»µïÀìÍÑÃϰè
| ²Á³Ê | 1,790Ëü±ß ¿·²Á³Ê ¥í¡¼¥ó¥·¥ß¥å¥ì¡¼¥·¥ç¥ó¡¡> |
|---|---|
| ½êºßÃÏ |
¹Å縩¹Åç»Ô°Âº´Ë̶èÍî¹çÆî£±ÃúÌÜ
|
| ¸òÄÌ | ·ÝÈ÷Àþ°Â·ÝÌð¸ý±Ø ÅÌÊâ23ʬ |
| ·ú¤Ú¤¤Î¨ | 50% |
| ÍÆÀÑΨ | 100% |
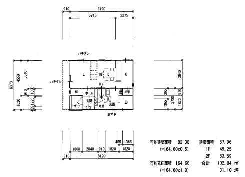
| ÉßÃÏÌÌÀÑ | 164.6Ö(Ìó 49.79ÄÚ) |
- ¤ªÌ䤤¹ç¤ï¤»
- °Âº´Æî±Ä¶È½ê
- 0120-135-709
- ±Ä¶È»þ´Ö¡§£±£°»þ£°£°Ê¬¡Á£±£¸»þ£°£°Ê¬
ôÅö¼Ô¡§º´Æ£¡¡·ò°ì
- ±Ä¶ÈôÅö¼Ô¤«¤é¤Î¥³¥á¥ó¥È
- ¡§
- ¹Åç¸òḀ̈Х¹Ää¡Ú²¼´ä¤Î¾å¡ÛÅÌÊâÌó7ʬ¡ª
¥Þ¥Ã¥¯¥¹¥Ð¥ê¥å¹âÍÈŹ¤Þ¤ÇÅÌÊâÌó8ʬ¡ª
- Çä¼çÍͤ«¤é¤Î¥³¥á¥ó¥È
- ¡§
- JR¡Ú°Â·ÝÌð¸ý±Ø¡Û¤Þ¤ÇÅÌÊâÌó27ʬ¡ª
¡Ú·úÃÛ¾ò·ï¤Ê¤·¡Û¤ª¹¥¤¤Ê¥Ï¥¦¥¹¥á¡¼¥«¡¼¤Ç·úÃ۲ġª
- ½êºßÃÏ
- ¹Å縩¹Åç»Ô°Âº´Ë̶èÍî¹çÆî£±ÃúÌÜ
- ¸òÄÌ
- ·ÝÈ÷Àþ°Â·ÝÌð¸ý±Ø ÅÌÊâ23ʬ
- ²Á³Ê/ÄÚñ²Á
- 1,790Ëü±ß¥í¡¼¥ó¥·¥ß¥å¥ì¡¼¥·¥ç¥ó¡¡>
- ÅÚÃÏÌÌÀÑ
- 164.6Ö
- »äÆ»Ééô
- Ö
- ¥»¥Ã¥È¥Ð¥Ã¥¯
- ·×¬Êý¼°
- ¸øÊí
- ·úÃÛ¾ò·ï¢¨
- ̵
- ÀÜÆ»Êý¸þÅù
- ÆîÀ¾(Éý°÷ Ìó4m/¸øÆ»/ÀÜÌÌ Ìó9.1m)
- ¹ñÅÚË¡
- ÉÔÍ×
- ÅԻԷײè
- »Ô³¹²½¶è°è
- ÍÑÅÓÃϰè
- Âè°ì¼ïÄãÁؽ»µïÀìÍÑÃϰè
- ·ú¤Ú¤¤Î¨/ÍÆÀÑΨ
- 50%/100%
- Ë¡Îá¾å¤ÎÀ©¸Â
- ÃÏÌÜ
- ÂðÃÏ
- ÅÚÃϸ¢Íø
- -
- Êݾڶ⡦Éß¶â
- -
- ¸½¶·
- ¹¹ÃÏ
- °úÅÏ»þ´ü
- ¨Æü
- È÷¹Í£±
- ÅÚÃÏÌó49ÄÚ¡¢Â¿ºÌ¤Ê¥×¥é¥ó¤¬²Äǽ¤Ê¹¤µ¡ª
- È÷¹Í£²
- ¼ÖÄ̤ê¤â¾¯¤Ê¤¯¡¢¤ª»¶Êâ¤â¤Ç¤¤ë´×ÀŤʽ»ÂðÃÏ¡ª
- ʪ·ïÈÖ¹æ
- 28240223
- ¼è°úÂÖÍÍ
- Çä¼ç
- ¾ðÊóÅÐÏ¿Æü
- 2026ǯ02·î03Æü
- ¼¡²ó¹¹¿·Í½ÄêÆü
- 2026ǯ2·î28Æü
- ÌȵöÈÖ¹æ
- ¹ñÅÚ¸òÄÌÂç¿Ã(11)Âè3123¹æ
- ½ê°ÃÄÂÎ
- (¼Ò)ÉÔÆ°»ºÎ®Ä̷б͍²ñ²ñ°÷ (¼Ò)¼óÅÔ·÷ÉÔÆ°»º¸øÀµ¼è°ú¶¨µÄ²ñ²ÃÌÁ
- ¤ªÌ䤤¹ç¤ï¤»
- °Âº´Æî±Ä¶È½ê
- 0120-135-709
- ±Ä¶È»þ´Ö¡§£±£°»þ£°£°Ê¬¡Á£±£¸»þ£°£°Ê¬
¶áÎÙ¥¨¥ê¥¢¤ÎPickUpʪ·ï
-

- ¹Å縩¹Åç»Ô°Âº´Ë̶è¸ýÅÄÆî£´ÃúÌÜ ÅÚÃÏ
- 1,790Ëü±ß
-

- ¹Å縩¹Åç»Ô°Âº´Ë̶è¸ýÅÄÆî£³ÃúÌÜ ÅÚÃÏ
- 1,790Ëü±ß
-

- ¹Å縩¹Åç»Ô°Âº´Ë̶è²ÄÉô£±ÃúÌÜ ÅÚÃÏ
- 1,698Ëü±ß
-

- ¹Å縩¹Åç»Ô°Âº´Ë̶赵»³£µÃúÌÜ ÅÚÃÏ
- 1,598Ëü±ß
-

- ¹Å縩¹Åç»Ô°Âº´Ë̶褢¤µ¤Ò¤¬µÖ£´ÃúÌÜ ÅÚÃÏ
- 1,500Ëü±ß
-

- ¹Å縩¹Åç»Ô°Âº´Ë̶赵»³£µÃúÌÜ ÅÚÃÏ
- 1,498Ëü±ß
-

- ¹Å縩¹Åç»Ô°Âº´Ë̶赵»³£µÃúÌÜ ÅÚÃÏ
- 1,498Ëü±ß
¤ªÌ䤤¹ç¤ï¤»
¤³¤Îʪ·ï¤Î
¤ªµ¤¤ËÆþ¤êʪ·ï
¤ªµ¤¤ËÆþ¤êʪ·ï¤Ï¤¢¤ê¤Þ¤»¤ó
ºÇ¶á±ÜÍ÷¤·¤¿Êª·ï
ºÇ¶á±ÜÍ÷¤·¤¿Êª·ï¤Ï¤¢¤ê¤Þ¤»¤ó











