°ì¸Í·ú¤Æ
ÅìµþÅÔÎýÇ϶èÉٻθ«Â棲ÃúÌÜ
| ²Á³Ê | 7,980Ëü±ß |
|---|---|
| ½êºßÃÏ |
ÅìµþÅÔÎýÇ϶èÉٻθ«Â棲ÃúÌÜ
|
| ¸òÄÌ | À¾ÉðÃÓÂÞ¡¦ËÅçÀþÎýÇϹâÌîÂæ±Ø ÅÌÊâ9ʬ |
| ´Ö¼è¤ê | 4£Ì£Ä£Ë |
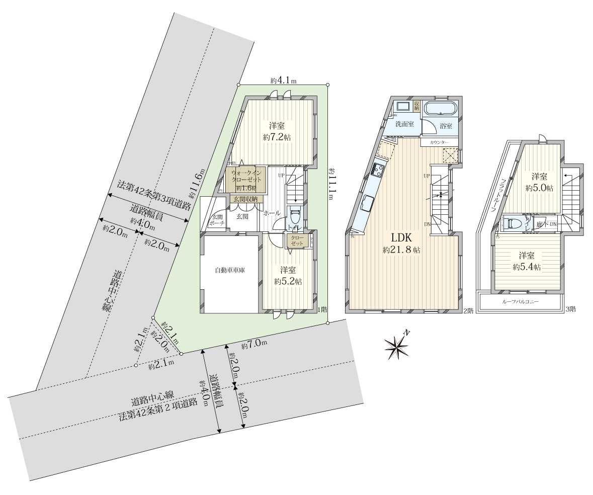
| ÉßÃÏÌÌÀÑ | 75.34Ö |
| ·úʪÌÌÀÑ | ±ä 110.87Ö |
| ÃÛǯ·î | 2026ǯ03·î |
- ¤ªÌ䤤¹ç¤ï¤»
- µÈ¾Í»û±Ä¶È½ê
- 0120-756-688
- ±Ä¶È»þ´Ö¡§£±£°»þ£°£°Ê¬¡Á£±£¸»þ£°£°Ê¬
ôÅö¼Ô¡§²¬ËÜ¡¡À®Ì¤
- ½êºßÃÏ
- ÅìµþÅÔÎýÇ϶èÉٻθ«Â棲ÃúÌÜ
- ¸òÄÌ
- À¾ÉðÃÓÂÞ¡¦ËÅçÀþÎýÇϹâÌîÂæ±Ø ÅÌÊâ9ʬ
- ²Á³Ê
- 7,980Ëü±ß
- ·úʪÌÌÀÑ
- ±ä 110.87Ö
- ´Ö¼è
- 4£Ì£Ä£Ë
- ·úʪ¹½Â¤/·úʪ³¬¿ô
- ÌÚ¤/ÃϾå2³¬
- ÃÛǯ·î
- 2026ǯ03·î
- ÉßÃÏÌÌÀÑ
- 75.34Ö
- »äÆ»ÌÌÀÑ
- 11.12Ö
- ¥»¥Ã¥È¥Ð¥Ã¥¯
- Ãó¼Ö¾ì
- Í
- ÀÜÆ»Êý¸þÅù
- ÆîÀ¾(Éý°÷ 4m/»äÆ»/ÀÜÌÌ 11.6m)ÆîÅì(Éý°÷ 4m//)
- ÀßÈ÷
- ¹ñÅÚË¡
- ÉÔÍ×
- ÅԻԷײè
- »Ô³¹²½¶è°è
- ÍÑÅÓÃϰè
- Âè°ì¼ï½»µïÃϰè
- ·ú¤Ú¤¤Î¨/ÍÆÀÑΨ
- 60%/160%
- Ë¡Îá¾å¤ÎÀ©¸Â
- ÃÏÌÜ
- ÂðÃÏ
- ÅÚÃϸ¢Íø
- ½ê͸¢
- Êݾڶ⡦Éß¶â
- -
- ¸½¶·
- ̤´°À®
- °úÅÏ»þ´ü
- -
- ¤¢¤ó¤·¤ó¥µ¥Ý¡¼¥È
- È÷¹Í£±
- È÷¹Í£²
- ¡¦»äÆ»Ééô¤Î¾ÜºÙ(¶¦Í)923.63m2¡ß¡Ê¶¦Í»ýʬ¡Ë53¡¿4400¡¿ÀßÈ÷¡§ÅÔ»Ô¥¬¥¹¡¢¸ø±Ä¿åÆ»¡¢Ëܲ¼¿å
- ʪ·ïÈÖ¹æ
- 100033177
- ¼è°úÂÖÍÍ
- Ãç²ð
- ¾ðÊóÅÐÏ¿Æü
- 2026ǯ02·î01Æü
- ¼¡²ó¹¹¿·Í½ÄêÆü
- 2026ǯ2·î3Æü
- ÌȵöÈÖ¹æ
- ¹ñÅÚ¸òÄÌÂç¿Ã(11)Âè3123¹æ
- ½ê°ÃÄÂÎ
- (¼Ò)ÉÔÆ°»ºÎ®Ä̷б͍²ñ²ñ°÷ (¼Ò)¼óÅÔ·÷ÉÔÆ°»º¸øÀµ¼è°ú¶¨µÄ²ñ²ÃÌÁ
- ¤ªÌ䤤¹ç¤ï¤»
- µÈ¾Í»û±Ä¶È½ê
- 0120-756-688
- ±Ä¶È»þ´Ö¡§£±£°»þ£°£°Ê¬¡Á£±£¸»þ£°£°Ê¬
¤ªÌ䤤¹ç¤ï¤»
¤³¤Îʪ·ï¤Î
¤ªµ¤¤ËÆþ¤êʪ·ï
¤ªµ¤¤ËÆþ¤êʪ·ï¤Ï¤¢¤ê¤Þ¤»¤ó
ºÇ¶á±ÜÍ÷¤·¤¿Êª·ï
ºÇ¶á±ÜÍ÷¤·¤¿Êª·ï¤Ï¤¢¤ê¤Þ¤»¤ó









