°ì¸Í·ú¤Æ
ÆàÎɸ©ÆàÎÉ»ÔÃæÅÐÈþ¥öµÖ£µÃúÌÜ
- ÃÛ£±£°Ç¯°ÊÆâ
- ³ÑÃÏ¡¦ÆóÊýƻϩ
- ¼Ö¸Ë¡Ê£²Âæ°Ê¾å¡Ë
- ¨Æþµï²Ä
- ÀßÈ÷ÊݾÚ
- àìáÓÊݾÚ
- ¤¢¤ó¤·¤ó¥µ¥Ý¡¼¥È
| ²Á³Ê | 5,930Ëü±ß(¾ÃÈñÀÇÅù´Þ) ¥í¡¼¥ó¥·¥ß¥å¥ì¡¼¥·¥ç¥ó¡¡> |
|---|---|
| ½êºßÃÏ |
ÆàÎɸ©ÆàÎÉ»ÔÃæÅÐÈþ¥öµÖ£µÃúÌÜ
|
| ¸òÄÌ | ¶áÅ´¤±¤¤¤Ï¤ó¤ÊÀþ³Ø¸¦ÆàÎÉÅÐÈþ¥öµÖ±Ø ÅÌÊâ14ʬ |
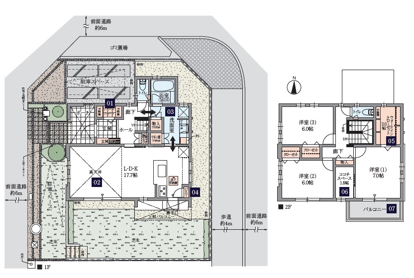
| ´Ö¼è¤ê | 3£Ì£Ä£Ë |
| ÉßÃÏÌÌÀÑ | 166.69Ö |
| ·úʪÌÌÀÑ | ±ä 105.69Ö |
| ÃÛǯ·î | 2024ǯ09·î |
| ¶áÅ´¤ÎÃç²ð ¤¢¤ó¤·¤ó¥µ¥Ý¡¼¥È | |
- ¤ªÌ䤤¹ç¤ï¤»
- ¹â¤Î¸¶±Ä¶È½ê
- 0120-135-736
- ±Ä¶È»þ´Ö¡§£±£°»þ£°£°Ê¬¡Á£±£¸»þ£°£°Ê¬
ôÅö¼Ô¡§¾èÌð¡¡¹¸°ì
- ±Ä¶ÈôÅö¼Ô¤«¤é¤Î¥³¥á¥ó¥È
- ¡§
- ´ØÅÅSOS¥ª¥ó¥é¥¤¥ó·ÙÈ÷¥·¥¹¥Æ¥à¤Î¥Û¡¼¥à¥»¥¥å¥ê¥Æ¥£
Íúʪ¤ä¥ì¥¤¥ó¥°¥Ã¥º¤Ê¤É¤â¼ýǼ¤Ç¤¤ë¥·¥å¡¼¥º¥¯¥í¡¼¥¯
- Çä¼çÍͤ«¤é¤Î¥³¥á¥ó¥È
- ¡§
- Æî¸þ¤¤Î L D K ¤«¤é¤ªÄí¤Ø¡¢³«Êü´¶¤Î¤¢¤ë»°Êý³ÑÃÏ
Ĺ´üÍ¥Îɽ»Âð¡¢ÂÀÍÛ¸÷¡ß¥¨¥Í¥Õ¥¡¡¼¥à¤ÇÄäÅÅ»þ¤â°Â¿´
- ½êºßÃÏ
- ÆàÎɸ©ÆàÎÉ»ÔÃæÅÐÈþ¥öµÖ£µÃúÌÜ
- ¸òÄÌ
- ¶áÅ´¤±¤¤¤Ï¤ó¤ÊÀþ³Ø¸¦ÆàÎÉÅÐÈþ¥öµÖ±Ø ÅÌÊâ14ʬ
- ²Á³Ê
- 5,930Ëü±ß(¾ÃÈñÀÇÅù´Þ)¥í¡¼¥ó¥·¥ß¥å¥ì¡¼¥·¥ç¥ó¡¡>
- ·úʪÌÌÀÑ
- ±ä 105.69Ö
- ´Ö¼è
- 3£Ì£Ä£Ë
- ·úʪ¹½Â¤/·úʪ³¬¿ô
- ÌÚ¤/ÃϾå2³¬
- ÃÛǯ·î
- 2024ǯ09·î
- ÉßÃÏÌÌÀÑ
- 166.69Ö
- »äÆ»ÌÌÀÑ
- -
- ¥»¥Ã¥È¥Ð¥Ã¥¯
- Ãó¼Ö¾ì
- Í
- ÀÜÆ»Êý¸þÅù
- ËÌ(Éý°÷ Ìó6m/¸øÆ»/ÀÜÌÌ Ìó8.4m)Åì(Éý°÷ Ìó10m/¸øÆ»/ÀÜÌÌ Ìó11.6m)À¾(Éý°÷ Ìó6m/¸øÆ»/ÀÜÌÌ Ìó11.6m)
- ÀßÈ÷
- ¹ñÅÚË¡
- ÉÔÍ×
- ÅԻԷײè
- »Ô³¹²½¶è°è
- ÍÑÅÓÃϰè
- Âè°ì¼ïÄãÁؽ»µïÀìÍÑÃϰè
- ·ú¤Ú¤¤Î¨/ÍÆÀÑΨ
- 50%/80%
- Ë¡Îá¾å¤ÎÀ©¸Â
- ÃÏÌÜ
- ÂðÃÏ
- ÅÚÃϸ¢Íø
- ½ê͸¢
- Êݾڶ⡦Éß¶â
- -
- ¸½¶·
- ¶õ²È
- °úÅÏ»þ´ü
- ¨Æü
- ¤¢¤ó¤·¤ó¥µ¥Ý¡¼¥È
- ÂоÝʪ·ï¡Ê¢¨¾ÜºÙ¤ÏôÅö¼Ô¤Ø¤´³Îǧ¤¯¤À¤µ¤¤¡Ë
- È÷¹Í£±
- È÷¹Í£²
- ʪ·ïÈÖ¹æ
- 4250072
- ¼è°úÂÖÍÍ
- Çä¼ç
- ¾ðÊóÅÐÏ¿Æü
- 2025ǯ11·î02Æü
- ¼¡²ó¹¹¿·Í½ÄêÆü
- 2025ǯ12·î15Æü
- ÌȵöÈÖ¹æ
- ¹ñÅÚ¸òÄÌÂç¿Ã(11)Âè3123¹æ
- ½ê°ÃÄÂÎ
- (¼Ò)ÉÔÆ°»ºÎ®Ä̷б͍²ñ²ñ°÷ (¼Ò)¼óÅÔ·÷ÉÔÆ°»º¸øÀµ¼è°ú¶¨µÄ²ñ²ÃÌÁ
- ¤ªÌ䤤¹ç¤ï¤»
- ¹â¤Î¸¶±Ä¶È½ê
- 0120-135-736
- ±Ä¶È»þ´Ö¡§£±£°»þ£°£°Ê¬¡Á£±£¸»þ£°£°Ê¬
¶áÎÙ¥¨¥ê¥¢¤ÎPickUpʪ·ï
-

- ÆàÎɸ©ÆàÎÉ»ÔÃæÅÐÈþ¥öµÖ£µÃúÌÜ ¸Í·ú
- 5,930Ëü±ß
-

- ÆàÎɸ©ÆàÎÉ»ÔˡϡĮ ¸Í·ú
- 5,750Ëü±ß
-

- ÆàÎɸ©ÆàÎÉ»ÔÃæÅÐÈþ¥öµÖ£µÃúÌÜ ¸Í·ú
- 6,280Ëü±ß
-

- ÆàÎɸ©ÆàÎɻԸŻÔÄ® ¸Í·ú
- 5,500Ëü±ß
-

- ÆàÎɸ©ÆàÎÉ»ÔÃæÅÐÈþ¥öµÖ£µÃúÌÜ ¸Í·ú
- 6,380Ëü±ß
-

- ÆàÎɸ©ÆàÎÉ»ÔÄëÄÍ»³Æî£²ÃúÌÜ ¸Í·ú
- 4,990Ëü±ß
-

- ÆàÎɸ©ÆàÎÉ»ÔÅìÅÐÈþ¥öµÖ£²ÃúÌÜ ¸Í·ú
- 4,880Ëü±ß
- ÆàÎɻԡß2£Ì£Ä£Ë¤Îʪ·ï¤ò¤â¤Ã¤È¸«¤ë
- ÆàÎɻԡß3£Ì£Ä£Ë¤Îʪ·ï¤ò¤â¤Ã¤È¸«¤ë
- ÆàÎɻԡß3£Ó£Ì£Ä£Ë¤Îʪ·ï¤ò¤â¤Ã¤È¸«¤ë
- ÆàÎɻԡß4£Ä£Ë¤Îʪ·ï¤ò¤â¤Ã¤È¸«¤ë
- ÆàÎɻԡß4£Ì£Ä£Ë¤Îʪ·ï¤ò¤â¤Ã¤È¸«¤ë
- ÆàÎɻԡß4£Ó£Ì£Ä£Ë¤Îʪ·ï¤ò¤â¤Ã¤È¸«¤ë
- ÆàÎɻԡß5£Ä£Ë¤Îʪ·ï¤ò¤â¤Ã¤È¸«¤ë
- ÆàÎɻԡß5£Ì£Ä£Ë¤Îʪ·ï¤ò¤â¤Ã¤È¸«¤ë
- ÆàÎɻԡß5£Ó£Ì£Ä£Ë¤Îʪ·ï¤ò¤â¤Ã¤È¸«¤ë
- ÆàÎɻԡß6£Ì£Ä£Ë¤Îʪ·ï¤ò¤â¤Ã¤È¸«¤ë
- ÆàÎɻԡß6£Ó£Ì£Ä£Ë¤Îʪ·ï¤ò¤â¤Ã¤È¸«¤ë
- ÆàÎɻԡß7£Ì£Ä£Ë¤Îʪ·ï¤ò¤â¤Ã¤È¸«¤ë
- ÆàÎɻԡß7£Ó£Ä£Ë¤Îʪ·ï¤ò¤â¤Ã¤È¸«¤ë
- ³Ø¸¦ÆàÎÉÅÐÈþ¥öµÖ±Ø¡ß3£Ì£Ä£Ë¤Îʪ·ï¤ò¤â¤Ã¤È¸«¤ë
- ³Ø¸¦ÆàÎÉÅÐÈþ¥öµÖ±Ø¡ß3£Ó£Ì£Ä£Ë¤Îʪ·ï¤ò¤â¤Ã¤È¸«¤ë
- ³Ø¸¦ÆàÎÉÅÐÈþ¥öµÖ±Ø¡ß4£Ì£Ë¤Îʪ·ï¤ò¤â¤Ã¤È¸«¤ë
- ³Ø¸¦ÆàÎÉÅÐÈþ¥öµÖ±Ø¡ß4£Ì£Ä£Ë¤Îʪ·ï¤ò¤â¤Ã¤È¸«¤ë
- ³Ø¸¦ÆàÎÉÅÐÈþ¥öµÖ±Ø¡ß4£Ó£Ì£Ä£Ë¤Îʪ·ï¤ò¤â¤Ã¤È¸«¤ë
- ³Ø¸¦ÆàÎÉÅÐÈþ¥öµÖ±Ø¡ß5£Ì£Ä£Ë¤Îʪ·ï¤ò¤â¤Ã¤È¸«¤ë
¤ªÌ䤤¹ç¤ï¤»
¤³¤Îʪ·ï¤Î
¤ªµ¤¤ËÆþ¤êʪ·ï
¤ªµ¤¤ËÆþ¤êʪ·ï¤Ï¤¢¤ê¤Þ¤»¤ó
ºÇ¶á±ÜÍ÷¤·¤¿Êª·ï
ºÇ¶á±ÜÍ÷¤·¤¿Êª·ï¤Ï¤¢¤ê¤Þ¤»¤ó









