°ì¸Í·ú¤Æ
ʼ¸Ë¸©¿À¸Í»Ô¿ÜËá¶èºù¤ÎÅΣ²ÃúÌÜ
- ÃÛ£±£°Ç¯°ÊÆâ
- Æî¸þ¤
- ³ÑÃÏ¡¦ÆóÊýƻϩ
- ¥ª¡¼¥ëÅŲ½½»Âð
- ¼Ö¸Ë¡Ê£²Âæ°Ê¾å¡Ë
- ¨Æþµï²Ä
| ²Á³Ê | 4,580Ëü±ß ¿·²Á³Ê ¥í¡¼¥ó¥·¥ß¥å¥ì¡¼¥·¥ç¥ó¡¡> |
|---|---|
| ½êºßÃÏ |
ʼ¸Ë¸©¿À¸Í»Ô¿ÜËá¶èºù¤ÎÅΣ²ÃúÌÜ
|
| ¸òÄÌ | ¿À¸Í»ÔÀ¾¿À»³¼êÀþ̯ˡ»û±Ø ÅÌÊâ15ʬ |
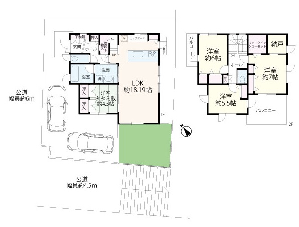
| ´Ö¼è¤ê | 4£Ó£Ì£Ä£Ë |
| ÉßÃÏÌÌÀÑ | 150.97Ö |
| ·úʪÌÌÀÑ | ±ä 112.58Ö |
| ÃÛǯ·î | 2017ǯ03·î |
- ¤ªÌ䤤¹ç¤ï¤»
- ¿À¸Í»°µÜ±Ä¶È½ê
- 0800-222-3338
- ±Ä¶È»þ´Ö¡§£±£°»þ£°£°Ê¬¡Á£±£¸»þ£°£°Ê¬
ôÅö¼Ô¡§¾®Å衡μÂÀϺ
- ±Ä¶ÈôÅö¼Ô¤«¤é¤Î¥³¥á¥ó¥È
- ¡§
- Ĺ´üÍ¥ÎÉǧÄê½»Âð¤Ë¤Ê¤ê¤Þ¤¹¡ª
ÊÝ¾ÚÆâÍÆ¡¦ÀǽÆâÍÆ¤Ï¸½ÃϤˤƤ´ÀâÌÀ¤·¤Þ¤¹¡ª
- Çä¼çÍͤ«¤é¤Î¥³¥á¥ó¥È
- ¡§
- °ì¾ò¹©Ì³Å¹»Ü¹©Ãíʸ½»Âð¤Ç¤¹¡ª
Ãó¼Ö2Âæ²Äǽ¤Ç¤¹¡ª
- ½êºßÃÏ
- ʼ¸Ë¸©¿À¸Í»Ô¿ÜËá¶èºù¤ÎÅΣ²ÃúÌÜ
- ¸òÄÌ
- ¿À¸Í»ÔÀ¾¿À»³¼êÀþ̯ˡ»û±Ø ÅÌÊâ15ʬ
- ²Á³Ê
- 4,580Ëü±ß¿·²Á³Ê¥í¡¼¥ó¥·¥ß¥å¥ì¡¼¥·¥ç¥ó¡¡>
- ·úʪÌÌÀÑ
- ±ä 112.58Ö
- ´Ö¼è
- 4£Ó£Ì£Ä£Ë
- ·úʪ¹½Â¤/·úʪ³¬¿ô
- ÌÚ¤/ÃϾå2³¬
- ÃÛǯ·î
- 2017ǯ03·î
- ÉßÃÏÌÌÀÑ
- 150.97Ö
- »äÆ»ÌÌÀÑ
- -
- ¥»¥Ã¥È¥Ð¥Ã¥¯
- Ãó¼Ö¾ì
- Í
- ÀÜÆ»Êý¸þÅù
- ËÌÀ¾(Éý°÷ 6m/¸øÆ»/ÀÜÌÌ 11.4m)
- ÀßÈ÷
- ¹ñÅÚË¡
- ÉÔÍ×
- ÅԻԷײè
- »Ô³¹²½¶è°è
- ÍÑÅÓÃϰè
- Âè°ì¼ïÄãÁؽ»µïÀìÍÑÃϰè
- ·ú¤Ú¤¤Î¨/ÍÆÀÑΨ
- 50%/100%
- Ë¡Îá¾å¤ÎÀ©¸Â
- Âè°ì¼ï¹âÅÙÃ϶è ÂðÃϤÀ®Åùµ¬À©Ë¡
- ÃÏÌÜ
- ÂðÃÏ
- ÅÚÃϸ¢Íø
- ½ê͸¢
- Êݾڶ⡦Éß¶â
- -
- ¸½¶·
- ¶õ²È
- °úÅÏ»þ´ü
- ¨Æü
- ¤¢¤ó¤·¤ó¥µ¥Ý¡¼¥È
- È÷¹Í£±
- È÷¹Í£²
- ʪ·ïÈÖ¹æ
- 99250053
- ¼è°úÂÖÍÍ
- Ãç²ð
- ¾ðÊóÅÐÏ¿Æü
- 2025ǯ12·î09Æü
- ¼¡²ó¹¹¿·Í½ÄêÆü
- 2025ǯ12·î15Æü
- ÌȵöÈÖ¹æ
- ¹ñÅÚ¸òÄÌÂç¿Ã(11)Âè3123¹æ
- ½ê°ÃÄÂÎ
- (¼Ò)ÉÔÆ°»ºÎ®Ä̷б͍²ñ²ñ°÷ (¼Ò)¼óÅÔ·÷ÉÔÆ°»º¸øÀµ¼è°ú¶¨µÄ²ñ²ÃÌÁ
- ¤ªÌ䤤¹ç¤ï¤»
- ¿À¸Í»°µÜ±Ä¶È½ê
- 0800-222-3338
- ±Ä¶È»þ´Ö¡§£±£°»þ£°£°Ê¬¡Á£±£¸»þ£°£°Ê¬
¶áÎÙ¥¨¥ê¥¢¤ÎPickUpʪ·ï
¤ªÌ䤤¹ç¤ï¤»
¤³¤Îʪ·ï¤Î
¤ªµ¤¤ËÆþ¤êʪ·ï
¤ªµ¤¤ËÆþ¤êʪ·ï¤Ï¤¢¤ê¤Þ¤»¤ó
ºÇ¶á±ÜÍ÷¤·¤¿Êª·ï
ºÇ¶á±ÜÍ÷¤·¤¿Êª·ï¤Ï¤¢¤ê¤Þ¤»¤ó














