¥Þ¥ó¥·¥ç¥ó
¾åÁ°ÄÅ¥µ¥ó¥Ï¥¤¥Ä
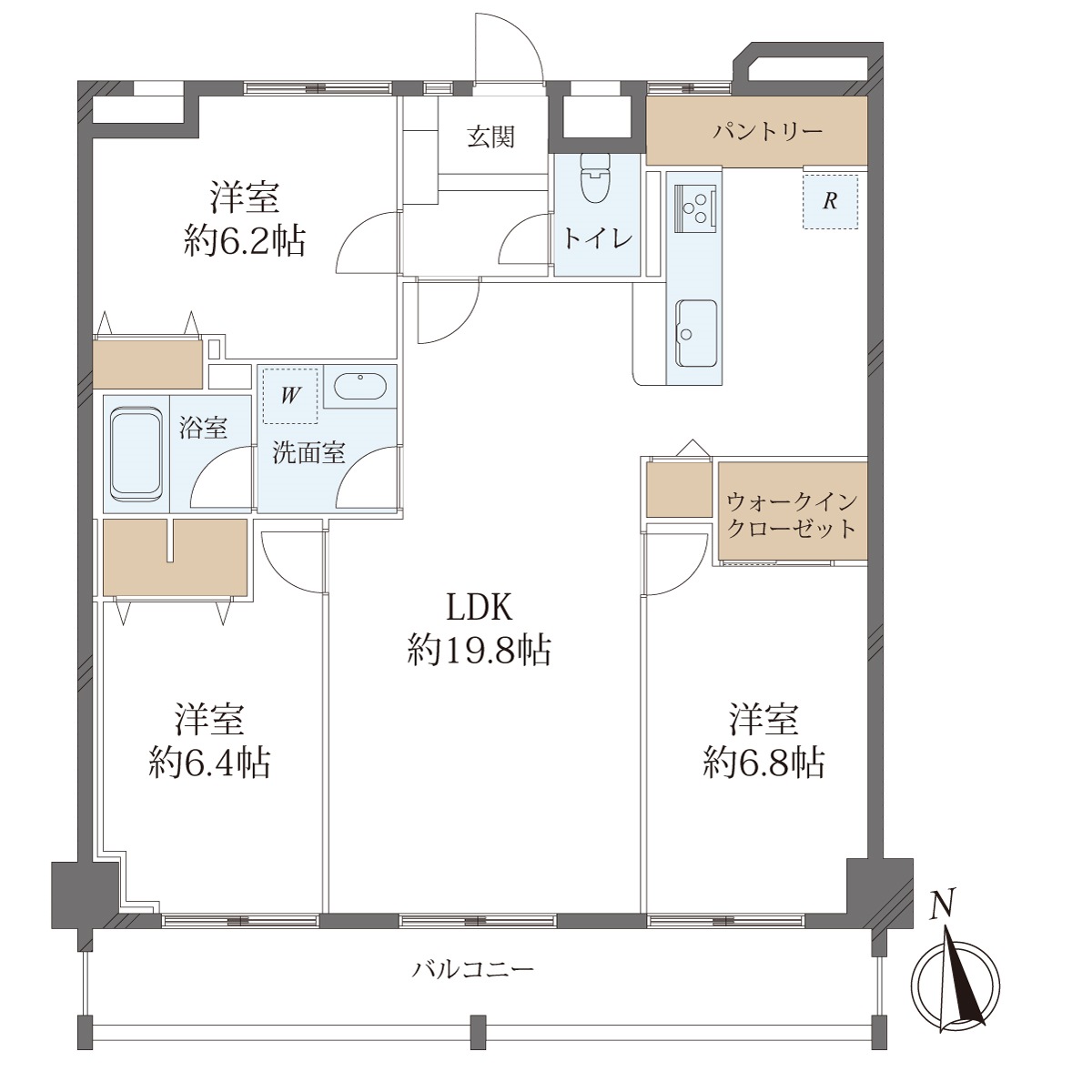
| ²Á³Ê | 1,980Ëü±ß ¥í¡¼¥ó¥·¥ß¥å¥ì¡¼¥·¥ç¥ó¡¡> |
|---|---|
| ½êºßÃÏ |
°¦Ãθ©Ì¾¸Å²°»ÔÃæ¶èÉٻθ«Ä®
|
| ¸òÄÌ | ̾¸Å²°»Ô̾¾ëÀþ¾åÁ°ÄűؠÅÌÊâ6ʬ |
| ´Ö¼è¤ê | 3£Ì£Ä£Ë |
| Êý°Ì | Æî |
| ÀìÍÌÌÀÑ | 78.98Ö |
| ³¬¿ô | 8³¬/ÃϾå11³¬ Ãϲ¼8³¬ |
| ÃÛǯ·î | 1979ǯ04·î |
- ¤ªÌ䤤¹ç¤ï¤»
- ̾¸Å²°±Ä¶È½ê
- 0120-935-251
- ±Ä¶È»þ´Ö¡§£±£°»þ£°£°Ê¬¡Á£±£¸»þ£°£°Ê¬
ôÅö¼Ô¡§ÅIJ¬¡¡¿µ²ð
- ½êºßÃÏ
- °¦Ãθ©Ì¾¸Å²°»ÔÃæ¶èÉٻθ«Ä®
- ¸òÄÌ
- ̾¸Å²°»Ô̾¾ëÀþ¾åÁ°ÄűؠÅÌÊâ6ʬ
- ²Á³Ê
- 1,980Ëü±ß¥í¡¼¥ó¥·¥ß¥å¥ì¡¼¥·¥ç¥ó¡¡>
- ÀìÍÌÌÀÑ
- 78.98Ö
- ´Ö¼è
- 3£Ì£Ä£Ë
- ·úʪ¹½Â¤
- £Ó£Ò£Ã¤
- ½êºß³¬¿ô/·úʪ³¬¿ô
- 8³¬/ÃϾå11³¬ Ãϲ¼8³¬
- ÃÛǯ·î
- 1979ǯ04·î
- Áí¸Í¿ô
- -
- ¥Ð¥ë¥³¥Ë¡¼/¸þ
- 3.01Ö/Æî
- ÀìÍÑÄíÌÌÀÑ
- -
- ´ÉÍýÈñ
- 8,100±ß(·î³Û)
- ½¤Á¶ÀÑΩ¶â
- 13,430±ß(·î³Û)
- ¤½¤Î¾ÈñÍÑ
- -
- ´ÉÍýÁȹç/´ÉÍý·ÁÂÖ
- Í/´ÉÍý²ñ¼Ò¤ËÁ´Éô°ÑÂ÷
- ´ÉÍý²ñ¼Ò
- °ËÆ£Ã饢¡¼¥Ð¥ó¥³¥ß¥å¥Ë¥Æ¥£(³ô)
- Ãó¼Ö¾ì
- ¶õ̵
- ÍÑÅÓÃϰè
- ¾¦¶ÈÃϰè
- ÅÚÃϸ¢Íø
- ½ê͸¢
- Êݾڶ⡦Éß¶â
- -
- ÀßÈ÷
- »ÜÀßÈñÍÑ
- -
- ¹ñÅÚË¡
- ÉÔÍ×
- ¸½¶·
- ¶õ²È
- °úÅÏ»þ´ü
- ÁêÃÌ
- ¤¢¤ó¤·¤ó¥µ¥Ý¡¼¥È
- È÷¹Í£±
- È÷¹Í£²
- ʪ·ïÈÖ¹æ
- 81250096
- ¼è°úÂÖÍÍ
- Ãç²ð
- ¾ðÊóÅÐÏ¿Æü
- 2025ǯ12·î12Æü
- ¼¡²ó¹¹¿·Í½ÄêÆü
- 2025ǯ12·î16Æü
- ÌȵöÈÖ¹æ
- ¹ñÅÚ¸òÄÌÂç¿Ã(11)Âè3123¹æ
- ½ê°ÃÄÂÎ
- (¼Ò)ÉÔÆ°»ºÎ®Ä̷б͍²ñ²ñ°÷ (¼Ò)¼óÅÔ·÷ÉÔÆ°»º¸øÀµ¼è°ú¶¨µÄ²ñ²ÃÌÁ
- ¤ªÌ䤤¹ç¤ï¤»
- ̾¸Å²°±Ä¶È½ê
- 0120-935-251
- ±Ä¶È»þ´Ö¡§£±£°»þ£°£°Ê¬¡Á£±£¸»þ£°£°Ê¬
¶áÎÙ¥¨¥ê¥¢¤ÎPickUpʪ·ï
¤ªÌ䤤¹ç¤ï¤»
¤³¤Îʪ·ï¤Î
¤ªµ¤¤ËÆþ¤êʪ·ï
¤ªµ¤¤ËÆþ¤êʪ·ï¤Ï¤¢¤ê¤Þ¤»¤ó
ºÇ¶á±ÜÍ÷¤·¤¿Êª·ï
ºÇ¶á±ÜÍ÷¤·¤¿Êª·ï¤Ï¤¢¤ê¤Þ¤»¤ó















